Projects

Consented - Sites Sold


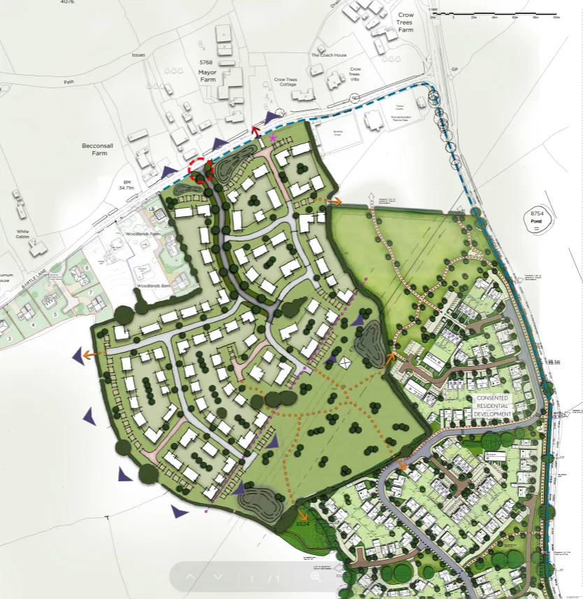
HSL provided land, technical and planning expertise on projects which saw planning permissions for new developments achieved at Lower Bartle, Preston for 195 new homes, acquired by Gleeson Homes, Birch, Rochdale for 24 new homes, acquired by Eccleston Homes, and Tilstock, Shropshire also for 24 new homes, acquired by a regional housebuilder. HSL’s breadth and depth of expertise came to the fore in dealing successfully with a range of difficult constraints and obstacles and in each instance planning permission was negotiated at the local level, without the need to resort to appeals, and purchasers secured.



Lower Bartle - Outline Masterplan

Lowert Bartle

 

Birch - Layout

Birch

 

Tilstock - Layout

Birch